Photos

Currency:

Information SAHRE

ID
2564701
price
Gel 140 426
1 M2 price
3 511 Gel
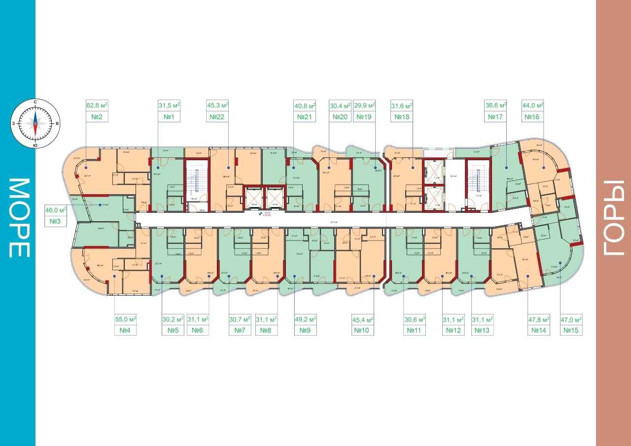
full Space:
40 M2
Floor:
18
Bedroom
1
Bathroom:
1
Deal type:
Buy
Country:
Georgia
City:
Batumi
address:
Makhindzhauri
View:
212
added date:
2025-10-22 13:50:19
edited date:
2025-10-22 16:16:51

Description

Продаётся квартира с одной спальней в ЖК Kolos (Махинджаури) Квартира площадью 40м², расположена на 18 этаже современного жилого комплекса Kolos, который находится в процессе завершения строительства. Состояние — чёрный каркас, что позволяет сделать ремонт по собственному вкусу. Из окон открывается панорамный вид на море. ЖК Kolos — стильная многоэтажная новостройка премиум-класса, расположенная в курортном районе Махинджаури, вблизи моря и всей необходимой инфраструктуры. Отличный вариант для инвестиций или создания комфортного жилья у моря.

see on map

message to agent

Nadezhda Krasnonos


+995 577 286 653

0